Lifting Platform – Technical Report for Theatre Use
Lifting Platform – Technical Report for Theatre Use
Stage Lifting Platform Technical Report Spain. Technical Justification Report for the Use in Theatres
TAGA Proyectos Escénicos prepared a technical justification report for the use of a stage lifting platform in theatre environments, commissioned by Kabuki Music S.L. in Córdoba, Spain.
The purpose of this technical document is to justify the adaptation and proper use of a stage lifting platform for theatrical applications, as well as to verify compliance with applicable legislation and technical standards, including UNE EN 17206 (Stage Machinery) and UNE-EN 1570-1:2012+A1:2015 (Lifting Tables).
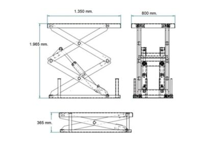
The electrically driven screw-actuated platform is used as a scenic lifting device for performers during live theatre productions.
The engineering assessment confirms that the installation meets the required safety, stability and reliability criteria for stage use.
Through the implementation of active and passive safety measures, as well as defined operational procedures, the risk of accidents is minimised, ensuring a safe working environment for both performers and technical staff.
TAGA Proyectos Escénicos ensures that every scenic element complies with the highest technical and regulatory standards, providing safety, precision and reliability for theatre productions.
With this intervention, TAGA reinforces its expertise in regulatory compliance and technical adaptation of stage lifting platforms for theatrical productions in Spain.
Safety and Control in Stage Lifting Platforms
The use of a stage lifting platform in theatre environments requires a specific risk assessment due to synchronised movements, direct interaction with performers and high precision requirements.
The technical report defines preventive measures and control procedures that guarantee safe operation during installation, rehearsals and live performances.
Client: Kabuki Music S.L.
Location: Córdoba, Spain
Completion: 2025
OTHER PROJECTS
© TAGA PROYECTOS ESCENICOS SL 2026 | Aviso legal | Política de cookies | Política de privacidad | Política de calidad
© TAGA PROYECTOS ESCENICOS SL 2026 | Aviso legal | Política de cookies | Política de privacidad | Política de calidad







